Suivez-nous

408 Rue King
Saint-Eustache, QC J7P1R9
MLS#
24134479
Salles de bain:
2
Type:
Maison de plain-pied
Superficie habitable:
0
Année de construction:
1975
Chambres à coucher:
4
Taille du lot:
5856 PC

Vendu

Description

Plain-pied entièrement détaché situé sur un terrain de coin dans un secteur recherché de Saint-Eustache. Aire de vie à concept ouvert offrant une belle luminosité naturelle. Plusieurs rénovations effectuées : planchers, chauffage, climatisation, électricité, plomberie, salles de bains et luminaires. Toiture, portes et fenêtres presque toutes refaites récemment. Cour arrière privée avec grande piscine creusée chauffée au sel et entrée pouvant accueillir plusieurs véhicules. Près des autoroutes, parcs, écoles, épiceries, restaurants, transport en commun et à environ 15 minutes du REM.

Inclusions

Lave-vaisselle,plaque de cuisson avec hotte aspirante,four encastré,laveuse,sècheuse,réfrigérateur sous-sol,tous les luminaires,spots LED intelligents à changement de couleur,deux(2) miroirs de salle de bains intelligents,toutes les étagères/cloisons des placards,table d'atelier, tous les accessoires de piscine (chlorateur au sel Hayward+chauffage de piscine MOOV),gazebo et mobilier d'extérieur.Tous les inclusions sont fournis sans aucune garantie légale de qualité.

Exclusions

Tous les effets personnels du vendeur, tout le mobilier d'intérieur, deux (2) téléviseurs muraux, un réfrigérateur de cuisine Midea, un coffre-fort dans le walk-in.

Evaluation municipale du terrain

$201,000

Evaluation municipale du batiment

$289,900

Plus d'information

Située dans un secteur recherché de Saint-Eustache, cette propriété de plain-pied entièrement détachée est implantée sur un terrain de coin prisé et offre une opportunité clé en main idéale pour les acheteurs à la recherche de confort, de commodité et de tranquillité d'esprit.

La propriété a bénéficié de nombreuses rénovations au fil des années, mettant en valeur des améliorations de qualité à travers l'ensemble de la maison. L'aire de vie principale à concept ouvert accentue le style moderne de la propriété et permet une abondance de lumière naturelle dans les espaces de vie. Parmi les améliorations notables, on retrouve les planchers, les systèmes de chauffage, la climatisation, l'électricité, la plomberie, les salles de bains ainsi que les luminaires modernes, contribuant tous à une propriété bien entretenue et prête à emménager. De plus, la toiture, les portes et les fenêtres ont presque toutes été refaites récemment, ajoutant à la valeur et à l'efficacité de la propriété.

L'extérieur est tout aussi impressionnant, offrant une cour arrière privée conçue pour la détente et le plaisir. Une grande piscine creusée chauffée au sel constitue la pièce maîtresse, parfaite pour recevoir ou relaxer durant la saison estivale. L'entrée asphaltée de grande dimension permet de stationner plusieurs véhicules.

Idéalement située, la propriété offre un accès rapide et facile aux grands axes routiers, facilitant les déplacements. Elle se trouve également à proximité de plusieurs parcs, épiceries, restaurants et écoles, assurant un accès simple à tous les services essentiels et commodités. Le transport en commun est facilement accessible avec des arrêts d'autobus à proximité, et la station du REM est à environ 15 minutes en voiture.

Cette propriété combine emplacement, fonctionnalité et rénovations modernes -- une opportunité à ne pas manquer.

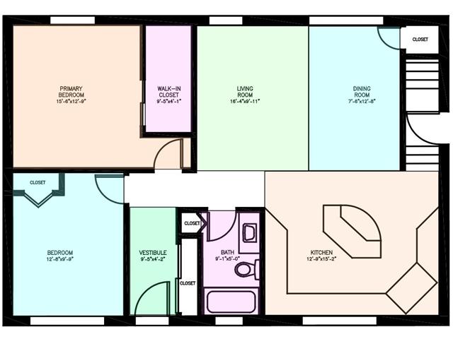
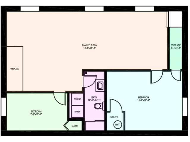
Détails de pièce
Pièce Dimensions Niveau Sol
Hall d'entrée 9.5 x 4.2 P Rez-de-chaussée Tuiles
Chambre à coucher 12.8 x 9.9 P Rez-de-chaussée Bois
Chambre à coucher principale 15.6 x 12.9 P Rez-de-chaussée Bois
Penderie (Walk-in) 9.5 x 4.1 P Rez-de-chaussée Bois
Salle de bains 4.10 x 9.2 P Rez-de-chaussée Tuiles
Salon 16.4 x 9.11 P Rez-de-chaussée Bois
Salle à manger 7.6 x 12.8 P Rez-de-chaussée Bois
Cuisine 12.9 x 15.2 P Rez-de-chaussée Bois
Salle familiale 30.3 x 16.8 P Sous-sol Bois
Chambre à coucher 7.8 x 13.0 P Sous-sol Bois
Salle de bains 12.5 x 6.11 P Sous-sol Tuiles
Atelier 14.9 x 12.4 P Sous-sol Bois
Rangement 6.4 x 4.4 P Sous-sol Bois brut / béton
Bâtiment
Type Maison de plain-pied
Style Détaché (Isolé)
Dimensions 27x39 P
La Taille Du Lot 5856 PC
Dépenses
Taxes municipales (2026) $ 3109 / année
Taxes scolaires (2025) $ 319 / année
Caractéristiques
Sous-sol 6 pieds et plus, Totalement aménagé
Fenêtres Aluminium
Allée Asphalte, Double largeur ou plus
Proximité Autoroute/Voie rapide, École primaire, École secondaire, Garderie/CPE, Parc-espace vert, Transport en commun
Piscine Autre, Chauffée, Creusée
Toiture Bardeaux d'asphalte
Revêtements Brique, Vinyle
Efficacité énergétique Certification Novoclimat
Aménagement du terrain Clôturé, Terrain/cour bordé de haies
Particularités Coin de rue
Type de fenêtre Coulissante, Guillotine
Équipement disponible Cour privée, Thermopompe murale
Base de sous-sol Dalle de béton au sol
Énergie pour le chauffage Électricité
Stationnement Extérieur
Foyers-poêles Foyer au bois
Armoires Mélamine
Système d'égouts Municipal
Approvisionnement en eau Municipalité
Topographie Plat
Mode de chauffage Plinthes électriques
Zonage Résidentiel
Partager la propriété
Carte

Chargement des cartes...

Vue de la rue

Chargement de la vue de la rue...

Informations

George Hadjinicolaou
George Hadjinicolaou

Courtier immobilier résidentiel